技術專題
廢漿處理系統介紹
冠能固控撬裝廢漿處理系統是冠能公司根據用戶需求,按照客戶對處理后泥漿的要求進行設計、制造的用于廢棄泥漿的循環凈化撬裝處理系統。本系統主要核心設備為用于粗顆粒篩分的GNZS594E-HB高頻振動篩和GNLW363C-VFD的高速臥螺離心機(配合20尺絮凝加藥系統來提升離心機的處理效果),及系統配套進料螺桿泵、撬裝處理罐體、攪拌器等。根據客戶對出料的具體要求,可以調整不同的絮凝藥劑投加,保證出料達到客戶預期的處理效果。
系統組成和參數:
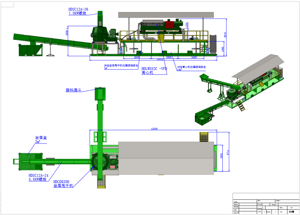
冠能固控油基巖屑不落地處理系統
冠能固控油基巖屑不落地處理系統由收集傳輸裝置、甩干處理裝置、離心分離裝置及其他輔助裝置組成。系統整體具有足夠的剛性及穩定性,系統設備運轉可靠,處理系統以GNLW453C-VFD大轉股高速離心機和GNCD930D高速巖屑甩干機為核心處理設備組成。
主要作用原理:
1.鉆機固控系統的振動篩、除泥除砂器、離心機等固相控制設備排除的巖屑經由收集傳輸裝置收集并輸送至甩干機進料的螺旋輸送機內。
2.巖屑經螺旋送入甩干機內進行固液分離甩干處理,液體排入甩干機排液倉,固相經過出料口螺旋輸送至巖屑箱收集。在甩干機排液倉液位達到警戒位時,自動啟動離心分離裝置進行姑爺精細化回收處理。
3.離心機排出的固項經過排渣槽外排收集,經過離心機處理后的清潔泥漿排入清液回收倉,當回收倉中的液相達到警戒位時經由輸送裝置外輸回收繼續鉆井工作。
冠能固控油基巖屑不落地處理系統具有以下優勢特點:
1、系統整體撬裝設計,便于安裝與運輸,撬裝可免拆卸設備整體吊裝運輸。 2、甩干機工作轉速可達到900~1200r/min。 3、離心機工作轉速3000r/min,轉股長徑比為3.42,石油行業大長徑比設計。 4、系統進液排液可實現免人工自動化運轉,人員只需要注意甩干機、離心機工作狀態即可。 5、可適應50%含固量、2.2g/cm³高密度以上的油基巖屑處理工作,并可達到連續24小時連續工作狀態。
冠能固控螺旋輸送機
冠能固控多年致力于泥漿固控設備、廢棄泥漿處理設備的研發生產工作,目前產品線涵蓋40多個種類,涉及石油天然氣鉆采領域、建筑泥漿凈化處理領域、含油污泥處理領域、河道清淤處理領域、固液廢棄物環保領域、介質輸送領域六大類專業型設備的加工制造。
下面介紹一款廣泛應用輸送領域的輸送機械設備螺旋輸送機,螺旋輸送機的應用非常廣泛,主要是利用旋轉的螺旋葉片將進入被輸送的物料推擠移動向殼體的另一端排出。螺旋輸送機廣泛應用于食品、醫藥、化工、造紙、環保、冶金、建材、石油、電力等行業。螺旋輸送機類型多,可滿足不同工況、不同物料的輸送要求。
冠能固控的螺旋輸送機與普通輸送機制造廠商的區別在于冠能的生產加工制造標準為滿足石油、礦山、海洋、化工等高危作業場所要求,所生產的螺旋輸送機滿足于美國石油協會API制造標準、滿足歐盟出口CE認證標準、滿足于澳大利亞國家安全與環保標準。冠能固控的螺旋輸送機具有高耐磨、耐強酸強堿、耐油、維護簡易等特點。
螺旋輸送機參數表(可提供多種尺寸定制服務): 結構特點:1、結構簡單,截面尺寸、體積較小,便于布置。 2、便于在不同位置加載或卸載,即可以設置多個加料口或卸料口。 3、操作安全、維護簡便。 4、有較好的密封性、保持環境清潔。 5、輸送易破碎物料時,破碎率較高。 6、輸送物料時要克服物料的摩擦力,所以螺旋葉片有磨損。 7、具有高耐磨、耐強酸強堿、耐油等特性,可適應高危、粗糙工作場所。
含油污泥處理系統
河北冠能石油機械制造有限公司(原唐山冠能機械設備有限公司),是一家主要生產以石油鉆井為主的鉆井液泥漿固控設備、廢漿處理設備的企業,公司定位于國際和國內中高端固控行業市場參與者,公司在國際市場的產品銷售份額遠遠高于國內同行,并形成了良好的口碑。公司總部位于北京 都機場40公里處的大廠潮白河工業區,是目前國內通過美國API認證并能同時制造離心干燥機和大轉鼓高速離心機的生產廠家。
憑借冠能公司廣泛的業務渠道,近兩年來頻繁接收到國內、國際等大量客戶對油泥砂處理的需求。借助冠能公司在美國分公司的優勢,冠能結合美國等國際前沿的油污泥處理方案和現場案例,研發出了一套完整的油泥處理系統。
經過此套系統處理完成后的固相含油率可控制在1-2%以內,液相中的固體含量可控制到0.3%以內,大大減少固相物質的含油率,也為后期的熱解吸等工藝提供 的減量化保障,提高含油污泥的處理效率。
冠能石油誠邀行業內各級領導隨時來公司考察交流。
更多冠能產品信息,請聯系冠能固控.。
油水分離裝置
冠能固控油水分離裝置是冠能含油污泥廢棄物處理系統的重要組成部分。主要作用是將前期油泥水廢棄混合物,經過高頻干燥篩和臥螺離心機兩種設備預處理粗過濾后排出的清液進行二次油水分離處理。其處理效果明顯,可滿足現場的油、水單獨回收的再利用要求。冠能固控油水分離裝置是一種高性能,聚結設計,用于從含油廢水中去除游離和分散的油滴。
1、結構及原理冠能固控油水分離裝置是將油水混合物進入油水分離進水區并擴散分布。混合物進入聚結填料介質,其中建立了層流和正弦流,并且油侵入波紋聚結填料表面。當細小油滴積聚時,它們聚結成較大的油滴,通過聚結波紋向上升高,直到它們到達聚結填料的頂部,在那里油滴分離并升至水的表面。同時,固體遇到聚結填料并隨著波紋向下滑動,落入波紋聚結填料下的V型料斗中。
利用油和水之間的密度差進行重力分離。油以斯托克斯沉降定律解釋的速度與液體分離。該公式預測在一定的距離上,油滴將根據油滴尺寸的密度和尺寸,快速地通過水上升或沉降。
2、特點 1)可單獨使用或與其他處理工藝(如乳化裂化,溶氣氣浮系統和澄清劑預處理)結合使用。 2)結構緊湊,占地面積小。 3)油水分離器可通過重力自流或泵輸送出下一級。 3、參數序號
項目
參數
1
橇體尺寸
2363mm ×1016mm× 2007mm(L×W×H)
1.1
進口高度
1676mm
1.2
出口高度
1448mm
1.3
油出口高度
1600mm
1.4
罐體壁厚
6mm
2
連接口標準
GBT 9119-2010
3
設計 壓 力
ATM
4
溫 度 范 圍
-20 deg F--122 deg F
5
干重
1195KG
6
操作重量
3763KG






